n h a d a n - Nha Dan Construction Design Company Limited
tiếng việt
  • PROJECTS
  • ABOUT
  • CONTACT
  • RECRUIT
  • SEARCH
  • PROJECTS
  • ABOUT
  • CONTACT
  • RECRUIT
  • SEARCH
  • tiếng việt

+84 (28) 7777 4343

arc@nhadan.com

ALL
RESIDENTIAL
HOSPITALITY
WORKSPACE
EDUCATION
INTERIOR

NDC APARTMENT

TEAM
ARCHITECTS
Nguyen Dinh Gioi
Nguyen Nhat Minh
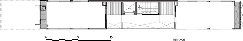
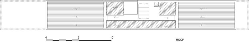
PROJECT DATA
AREA
139,5m2 (4,5mX31m)
DESIGN
2016
CONSTRUCTION
2018
1192.webp
1217.webp
1239.webp
1250.webp
1258.webp
1286.webp
1326.webp
1337.webp
1381.webp
1402.webp
1441.webp
1474.webp
1504.webp
1522.webp
1539.webp
1553.webp
1567.webp
1598.webp
1631.webp
1693.webp
1706.webp
1733.webp
1744.webp
1761.webp
1792.webp
1803.webp
1829.webp
1844.webp
1849.webp
1858.webp
1866.webp
1869.webp
1910.webp
1915.webp
1921.webp
1M-800px.webp
2M-800px.webp
3M-800px.webp
4M-800px.webp
5M-800px.webp
6M-800px.webp